建築製図教室 
建築製図教室、生徒随時募集中です!
あなたの製図力に合わせて個別指導が可能です。
年齢不問です。
随時募集しておりますので、お気軽にお問合せください。
・全くの素人さんでも手書きCADでも◎
・高校建築科等の生徒さん◎
・建築会社現場監督・営業の方で図面を書きたい方◎
・2級建築をめざしている方◎
・手書きで書けるようになりたい方◎
専門学校 文化デザイナー学院での講師経験を生かし、
建築・製図のレッスンを行っています。
初めて建築図面を作成する方から、現在資格勉強中の方、
社内でのレッスンまで幅広く対応しております。
・建築・製図の個人レッスン/社内でのレッスン
(出張対応も可能です。)
・プランから建築図面作成までの
CAD(Jw_cad)レッスン
・お客様のデータの持ち込みも対応可能です。
図面作成・加筆・修正・変更も一緒に行います。
・意匠図などの建築図面の作成
・2級建築士対策用図面の作成(資格対策)
・木造・鉄骨・RC造建築図面の作成
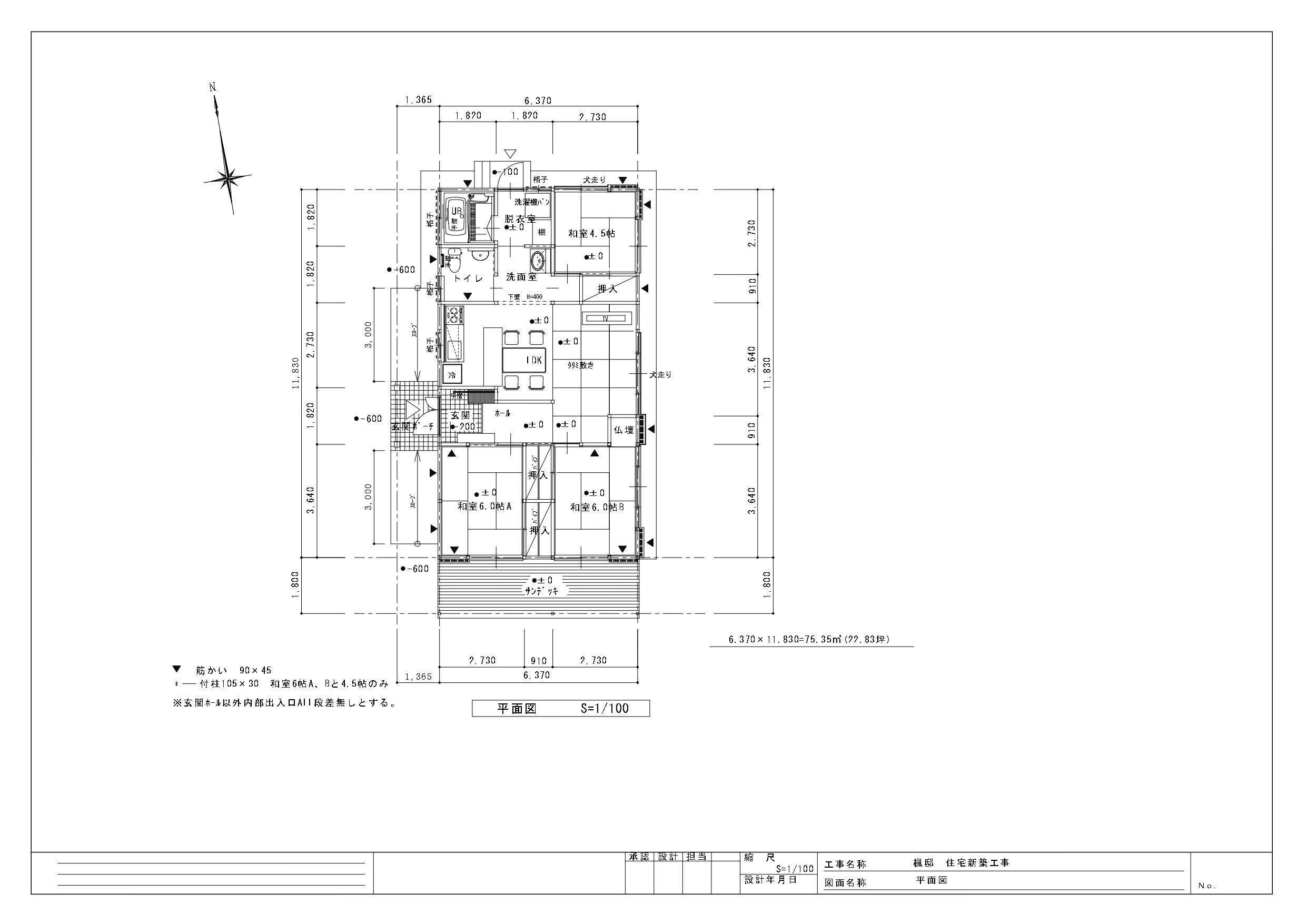
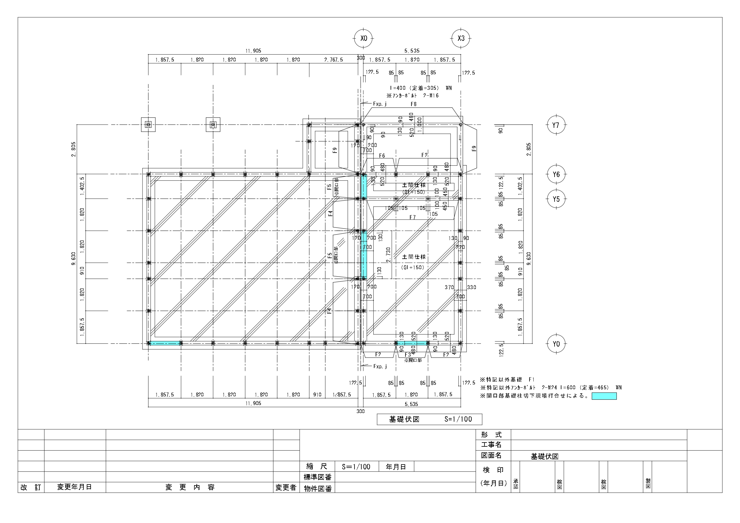
建築図面の例
詳しい内容につきましては、下記のお問い合わせフォーム、
TEL、MAILよりお問い合わせください。
TEL(FAX)0299-45-7445
MAIL
会社案内 


エヌ・ワイ設計室
| 代表者 | 西山好二 |
|---|---|
| 本社所在地 |
〒319-0202 茨城県笠間市下郷4439-40 |
| TEL(FAX) | 0299-45-7445 |
電車の場合
常磐線岩間駅を出て、駅前通りを西へ徒歩3分。
(※岩間駅を背にして愛宕山方面に
エヌ・ワイ設計室があります。)
自動車の場合
常磐道岩間インターチェンジから約3km。
(※岩間駅前常陽銀行通り沿い側に
エヌ・ワイ設計室があります。)
プロフィール 

建築家
西山 好二
Nishiyama Yoshiji
1953年生まれ
茨城県笠間市出身
保有資格 / 所属
一級建築士
宅地建物取引主任士
茨城県木造住宅耐震診断士
茨城県建築士会員 石岡支部理事
経歴
H建築設計事務所 :
公共建築物の設計・監理 ( 8年 )
Kリース ( 株 ) 水戸支店 :
民間・公共建築物の設計・監理 ( 9年 )
専門学校 文化デザイナー学院 :
非常勤講師 ( 6年 )
エヌ・ワイ設計室設立 :
民間建築・設計 ( 30年 ) …現在に至る

